Fördertechnik
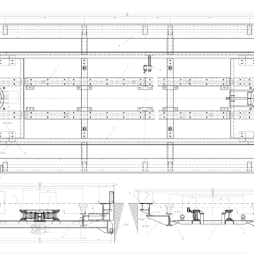
Entwurf, Auslegung und Konstruktion von fördertechnischen Anlagen überwiegend in Produktion, Lagertechnik und Gewinnungstechnik.
Entwurf, Auslegung und Konstruktion von fördertechnischen Anlagen überwiegend in Produktion, Lagertechnik und Gewinnungstechnik.