Direkt zum Inhalt springen
Mehr Informationen

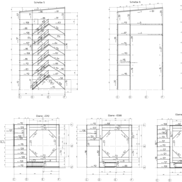
Einhausung Kalziernierschachtofen Oberjettenberg

Zurück zur Übersicht

Konstruktion und Anschlussstatik einer Einhausung bestehend aus 7 Ebenen, Erstellung von Verlegeplänen für Blechbeläge,

Abmessungen (L x B x H): 10,3 m x 9,9 m x 18,5 m

Masse: 54,9 t

Referenceimage normal view
  • Referenceimage preview
  • Referenceimage preview
  • Referenceimage preview
  • Referenceimage preview
  • Referenceimage preview
  • Referenceimage preview

Zurück zur Übersicht